
102 Babington Road
__Zone 3 | Streatham | London | SW16 6AL__
__A rare opportunity to build your dream family home in a residential pocket of Streatham__
__£590,000__
A unique chance to purchase a freehold plot with full planning permission in Zone 3 London for a high-quality, spaciously laid out four-bedroom home — perfectly placed between Streatham Common and Tooting Bec Common.




About the opportunity
Located at 102 Babington Road, London SW16, this freehold site presents a rare opportunity to create a contemporary family home within a quiet, established residential street.
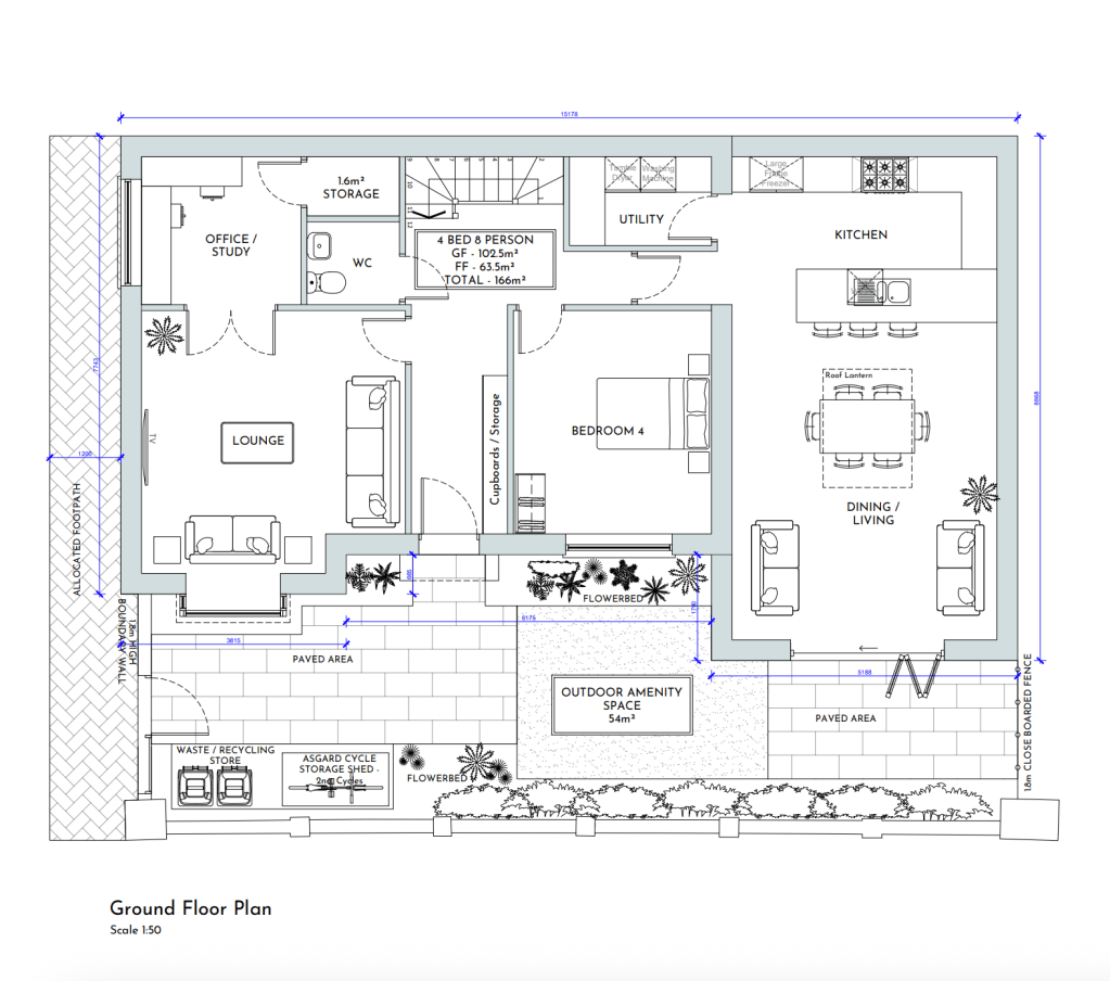
Full planning permission has been granted for the the construction of a new two-storey detached 1756sqft, four bedroom family home that combines traditional London brick architecture with refined modern detailing that can be customised as you like — a home designed for modern living, extra amenities and maximum space whilst in a residential suburban environment.

Key Highlights
Four bedrooms, three bathrooms, home office
54m² private garden and landscaped frontage
Separate utility room
Quiet residential street near Streatham High Road


Ground Floor includes:
Spacious lounge and separate home office/study
Large open-plan kitchen and dining area with garden access
Ground-floor bedroom and WC for accessibility
Utility and storage spaces designed for convenience
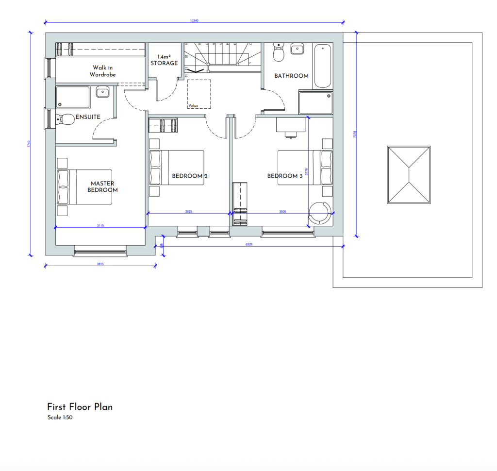
First Floor includes:
Three generous bedrooms, including a master suite with ensuite and walk-in wardrobe
Large family bathroom
Natural daylight throughout, including rooflights to the stairwell
The neighbourhood
Streatham
A Desirable Setting in Streatham, South London
To be privately developed in front of Babington Court, the plot sits in a peaceful, residential pocket of Streatham, just moments from vibrant amenities and excellent transport links.
Connections & Amenities:
- Streatham Station – 0.2 miles (direct to London Bridge & Blackfriars)
- Streatham High Road – shops, cafés, and restaurants within a 3-minute walk
- Streatham Common & Tooting Bec Common – both within 10 minutes on foot
- Excellent schools and nurseries nearby
This location combines the tranquility of suburban living with outstanding urban anementies
Estimated GDV: £1.3m+ (subject to build finish and specification)





